Architectural surveying for
Architects & Professional Planners


Construction Companies
Building Designers
Interior Designers
Building Developers
Licensed Architects
Landscape Architects
Welcome to DMH Design Co LLC – Your Partner in Direct Measurement Help With As-Built Surveys
At DMH Design Co LLC, we specialize in precise As-Built drawings for space planning in commercial buildings, residential properties, and major store renovations, serving clients both nationwide and internationally. With a proven track record among top professionals, we are now focusing on expanding our media presence. We invite you to consider us for your upcoming projects, where our expertise can provide a solid foundation for your project designs.
Tailored As-Built Solutions for Architects and Planners
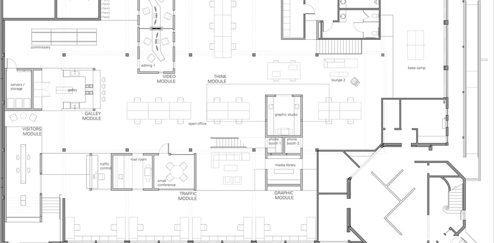
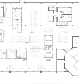
Our accurate As-Built surveys deliver critical insights for space planning, ensuring that every dimension and structural element is captured in detail. Whether you’re embarking on new design ideas or renovating existing spaces, we offer comprehensive services, including existing:
Floor Plans
Electrical plans
Exterior/Interior Elevation Plans
Reflective Ceiling Plans
MEP Plans
Equipment Plans
Furniture Plans
Above Ceiling Plans
Roof plans
Structural Plans
Site Plans.






In addition to these, for larger commercial projects, we offer:
Emergency & Fire Escape Plans
LOD Verification
ADA Transition Plans
Flexibility to Meet Your Project’s Needs
We recognize that architectural projects come with unique challenges. That’s why we’re committed to providing flexible services that fit your specific needs. Whether you require assistance with one-off projects, need help when your current surveyor is unavailable, or face tighter deadlines, we can ensure your project stays on track. We are also trusted by companies to verify the accuracy of previous surveys, ensuring all details are up-to-date. Additionally, our team is available for after-hours work, allowing us to accommodate urgent requests when time is of the essence.


Visual Documentation for Enhanced Clarity
To complement our As-Built drawings, we offer detailed photo documentation that helps bring your projects to life. Our visual services include:
Standard Photo Plans
360-Degree Photography
Virtual Walkthroughs
These features provide added clarity for your clients, allowing them to visualize spaces as complete environments rather than just raw data.
Let us help you use what we know to better your next project!
Let’s Collaborate!
We would love the opportunity to support your upcoming project and help streamline your architectural process. For inquiries or to schedule a meeting, please contact us!
Why Choose DMH Design Co LLC?
By choosing DMH Design Co LLC, you’ll gain a reliable partner focused on delivering accuracy, flexibility, and reliability for your architectural projects. Our As-Built services are designed to make space planning easier, allowing you to confidently move forward with precise, actionable data.